Maison à vendre |  Bordeaux |  4 pièces | 75 m²
365 000 €
Réf : 25-4350
Visitez en avant-première

Quartier Judaique - Ornano - Meriadeck


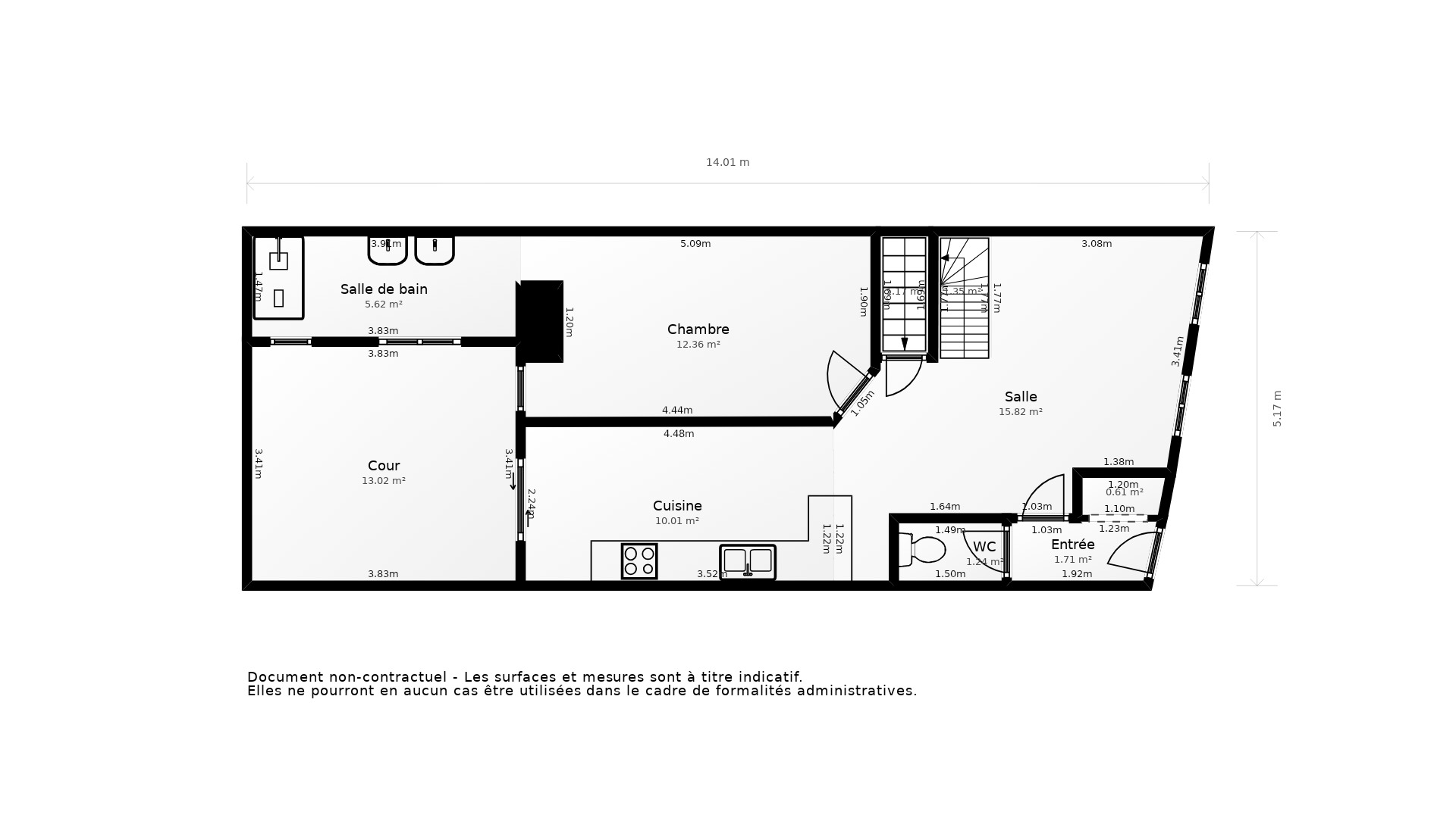
Proche St Genès. Venez découvrir cette échoppe dans une rue discrète à proximité des transports et commerces. Plus de 96 m2 au sol Composée d'une entrée, une pièce de vie donnant sur une terrasse. Une chambre avec SDE. A l'étage les combles aménagés permettent de bénéficier de 2 chambres avec salle d'eau. Une cave.

  • Surface habitable : 75 m²
  • Superficie terrain : 75 m²
  • Surface du séjour : 23 m²
  • Exposition séjour : Plein Ouest
  • Pièce(s) : 4
  • Chambre(s) : 3
  • Cuisine : Equipée
  • Salle(s) d'eau : 2
  • WC : 2
  • Chauffage : Électrique
  • Terrasse : Oui
  • Cave : Oui
  • Mitoyenneté : Oui
A
B
C
D
E
F
G
Dont Emission de gaz
à effet de serre
A
B
C
D
E
F
G
Afficher le DPE

Les informations sur les risques auxquels ce bien est exposé sont disponible sur le site Géorisques :
www.georisques.gouv.fr

Photo originale Photo retouchée
Laissez-vous inspirer par nos décorateurs

Avec la complicité de notre partenaire, nous vous proposons cet aménagement virtuel non contractuel. La pièce a été entièrement repensée et laisse place à une décoration actuelle et tendance.

> Prendre rendez-vous pour visiter
Prenez les mesures

Ce plan 2D représente la structure complète et précise du bien. La surface de chaque pièce est précisée à titre informatif. Ce plan ne se substitue en aucun cas à un diagnostic loi Carrez réalisé par un professionnel certifié.

> Télécharger le plan
Vente Maison BORDEAUX - 4 pièces - 75 m² - (33000)
Vente Maison BORDEAUX - 4 pièces - 75 m² - (33000)
Vente Maison BORDEAUX - 4 pièces - 75 m² - (33000)

Prix honoraires inclus : 365 000 €

Honoraires à la charge de l'acquéreur : 4,48% TTC

Prix hors honoraires : 349 350 €

Simulez votre mensualité pour l'achat de ce bien !

*Choissisez une durée d'emprunt

Simulez votre mensualité avec notre partenaire ImmoBanques


Calculez votre temps de trajet depuis ce bien



Les informations locales du quartier Judaique - Ornano - Meriadeck de Bordeaux

  • Transports
    • Arrêts de bus
    • Gares
    • Tramways
    • Arrêts de métro, RER
    • Aéroports
    • Parkings
  • Santé
    • Médecins généralistes
    • Médecins spécialistes
    • Pharmacies
    • Hôpitaux
  • Education Petite enfance
    • Crèches
    • Ecoles maternelles
    • Ecoles primaires
    • Collèges
    • Lycées
    • Enseignements supérieur
  • Loisirs & Culture
    • Restaurants, Cafés
    • Monuments, Bibliothèques
    • Sport
    • Espaces verts
    • Théatres, Cinémas, Casinos
  • Commerces Administration
    • Supermarchés
    • Bureaux de poste
    • Boulangeries
    • Boucheries
    • Marchés
    • Mairies, Police, Gendarmerie

Plus d’informations sur la ville de Bordeaux

  • Population : 241 290 habitants
  • Propriétaires : 32 %
  • Résidences secondaires : 3 %
  • Revenus moyens : 2 110 euros / mois
  • Taxe d'habitation* : 24 %
  • Taxe foncière* : 30 %
  • Densité de logements : 29 log/ha
  • Type de maison : Locations nombreuses
  • Logements sociaux : 12 %
  • Densité de population : 4 850 hab/km²

*Taux basé sur la valeur locative cadastrale

Agence immobilière ancien neuf Bordeaux Ornano
78 COURS MARÉCHAL JUIN
33000 BORDEAUX