Maison à vendre |  Boissy-l'Aillerie |  4 pièces | 87 m²
241 960 €
Réf : 69-5244
Visitez en avant-première

Dans une impasse, ce pavillon bénéficie d'un beau jardin de 900m², comprenant: Entrée, cuisine équpée, séjour avec cheminée, wc, salle d'eau, buanderie. A l'étage: 3 chambres et un bureau. Garage et dépendances. Idéalement situé, à moins de 10 minutes à pied de la Gare ligne J et seulement à 10 minutes de Cergy (RER A).

  • Surface habitable : 87 m²
  • Superficie terrain : 900 m²
  • Surface du séjour : 24 m²
  • Exposition séjour : Plein Est
  • Pièce(s) : 4
  • Chambre(s) : 4
  • Cuisine : Equipée
  • Salle(s) d'eau : 1
  • WC : 1
  • Chauffage : Électrique
  • Garage(s) : 1
  • Parking(s) : 3
A
B
C
D
E
F
G
Dont Emission de gaz
à effet de serre
A
B
C
D
E
F
G
Afficher le DPE

Les informations sur les risques auxquels ce bien est exposé sont disponible sur le site Géorisques :
www.georisques.gouv.fr

Photo originale Photo retouchée
Laissez-vous inspirer par nos décorateurs

Avec la complicité de notre partenaire, nous vous proposons cet aménagement virtuel non contractuel. La pièce a été entièrement repensée et laisse place à une décoration actuelle et tendance.

> Prendre rendez-vous pour visiter
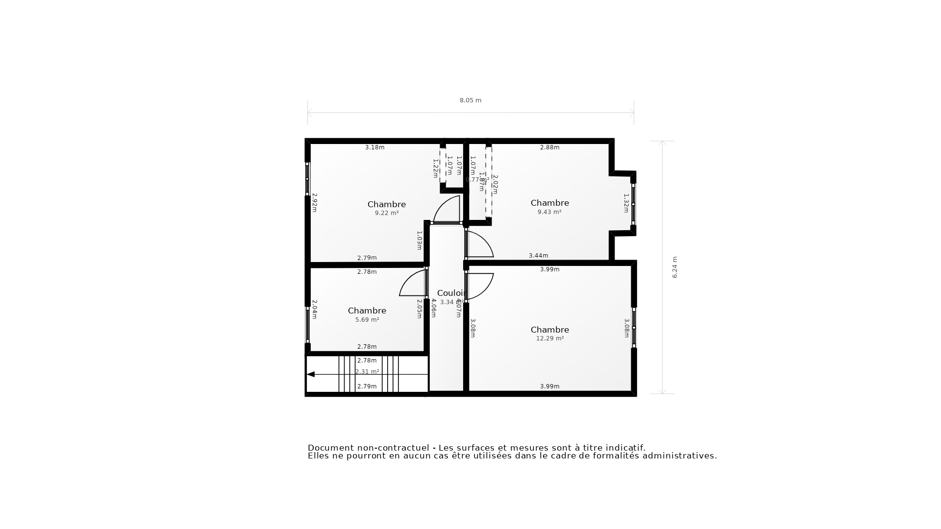
Prenez les mesures

Ce plan 2D représente la structure complète et précise du bien. La surface de chaque pièce est précisée à titre informatif. Ce plan ne se substitue en aucun cas à un diagnostic loi Carrez réalisé par un professionnel certifié.

> Télécharger le plan
Vente Maison BOISSY L AILLERIE - 4 pièces - 87 m² - (95650)
Vente Maison BOISSY L AILLERIE - 4 pièces - 87 m² - (95650)

Prix honoraires inclus : 241 960 €

Honoraires à la charge de l'acquéreur : 5,20% TTC

Prix hors honoraires : 230 000 €

Simulez votre mensualité pour l'achat de ce bien !

*Choissisez une durée d'emprunt

Simulez votre mensualité avec notre partenaire ImmoBanques


Calculez votre temps de trajet depuis ce bien



Les informations locales de Boissy-l'Aillerie

  • Transports
    • Arrêts de bus
    • Gares
    • Tramways
    • Arrêts de métro, RER
    • Aéroports
    • Parkings
  • Santé
    • Médecins généralistes
    • Médecins spécialistes
    • Pharmacies
    • Hôpitaux
  • Education Petite enfance
    • Crèches
    • Ecoles maternelles
    • Ecoles primaires
    • Collèges
    • Lycées
    • Enseignements supérieur
  • Loisirs & Culture
    • Restaurants, Cafés
    • Monuments, Bibliothèques
    • Sport
    • Espaces verts
    • Théatres, Cinémas, Casinos
  • Commerces Administration
    • Supermarchés
    • Bureaux de poste
    • Boulangeries
    • Boucheries
    • Marchés
    • Mairies, Police, Gendarmerie

Plus d’informations sur la ville de Boissy-l'Aillerie

  • Population : 1 790 habitants
  • Propriétaires : 78 %
  • Résidences secondaires : 2 %
  • Revenus moyens : 4 020 euros / mois
  • Taxe d'habitation* : 11 %
  • Taxe foncière* : 8 %
  • Densité de logements : 1 log/ha
  • Type de maison : Maisons récentes
  • Logements sociaux : 3 %
  • Densité de population : 330 hab/km²

*Taux basé sur la valeur locative cadastrale

Agence immobilière ancien neuf Vauréal
1 PLACE DE L ABBE PIERRE
95490 VAUREAL