Maison à vendre |  Beynes |  5 pièces | 92 m²
259 000 €
Réf : 255-1801
Visitez en avant-première

Au centre ville de BEYNES, à pied de toutes les commodités (commerces, écoles et gare ligne N), maison de ville en pierre disposant d'un séjour avec cheminée et salle à manger. Cuisine dinatoire. 3 chambres et grenier aménageable de plus de 50m². Cave. Toiture et ravallement récent. Fibre.

  • Surface habitable : 92 m²
  • Surface du séjour : 32 m²
  • Pièce(s) : 5
  • Chambre(s) : 3
  • Cuisine : Simple
  • Salle(s) d'eau : 1
  • WC : 2
  • Chauffage : Électrique
  • Cave : Oui
  • Grenier,Combles : Oui
A
B
C
D
E
F
G
Dont Emission de gaz
à effet de serre
A
B
C
D
E
F
G
Afficher le DPE

Les informations sur les risques auxquels ce bien est exposé sont disponible sur le site Géorisques :
www.georisques.gouv.fr

Photo originale Photo retouchée
Laissez-vous inspirer par nos décorateurs

Avec la complicité de notre partenaire, nous vous proposons cet aménagement virtuel non contractuel. La pièce a été entièrement repensée et laisse place à une décoration actuelle et tendance.

> Prendre rendez-vous pour visiter
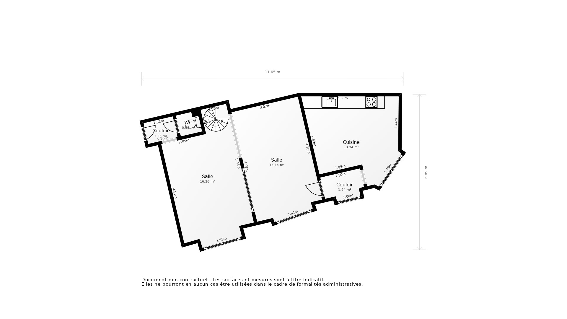
Prenez les mesures

Ce plan 2D représente la structure complète et précise du bien. La surface de chaque pièce est précisée à titre informatif. Ce plan ne se substitue en aucun cas à un diagnostic loi Carrez réalisé par un professionnel certifié.

> Télécharger le plan
Vente Maison BEYNES - 5 pièces - 92 m² - (78650)
Vente Maison BEYNES - 5 pièces - 92 m² - (78650)

Prix honoraires inclus : 259 000 €

Honoraires à la charge de l'acquéreur : 4,96% TTC

Prix hors honoraires : 246 761 €

Simulez votre mensualité pour l'achat de ce bien !

*Choissisez une durée d'emprunt

Simulez votre mensualité avec notre partenaire ImmoBanques


Calculez votre temps de trajet depuis ce bien



Les informations locales de Beynes

  • Transports
    • Arrêts de bus
    • Gares
    • Tramways
    • Arrêts de métro, RER
    • Aéroports
    • Parkings
  • Santé
    • Médecins généralistes
    • Médecins spécialistes
    • Pharmacies
    • Hôpitaux
  • Education Petite enfance
    • Crèches
    • Ecoles maternelles
    • Ecoles primaires
    • Collèges
    • Lycées
    • Enseignements supérieur
  • Loisirs & Culture
    • Restaurants, Cafés
    • Monuments, Bibliothèques
    • Sport
    • Espaces verts
    • Théatres, Cinémas, Casinos
  • Commerces Administration
    • Supermarchés
    • Bureaux de poste
    • Boulangeries
    • Boucheries
    • Marchés
    • Mairies, Police, Gendarmerie

Plus d’informations sur la ville de Beynes

  • Population : 7 630 habitants
  • Propriétaires : 79 %
  • Résidences secondaires : 1 %
  • Revenus moyens : 3 920 euros / mois
  • Taxe d'habitation* : 12 %
  • Taxe foncière* : 19 %
  • Densité de logements : 2 log/ha
  • Type de maison : Maisons récentes
  • Logements sociaux : 8 %
  • Densité de population : 400 hab/km²

*Taux basé sur la valeur locative cadastrale

Agence immobilière ancien neuf Beynes
CCAL DE LA PETITE MAULDRE
78650 BEYNES