logement très performant
logement extrêmement consommateur d'énergie
Contacter l'agence Aubergenville
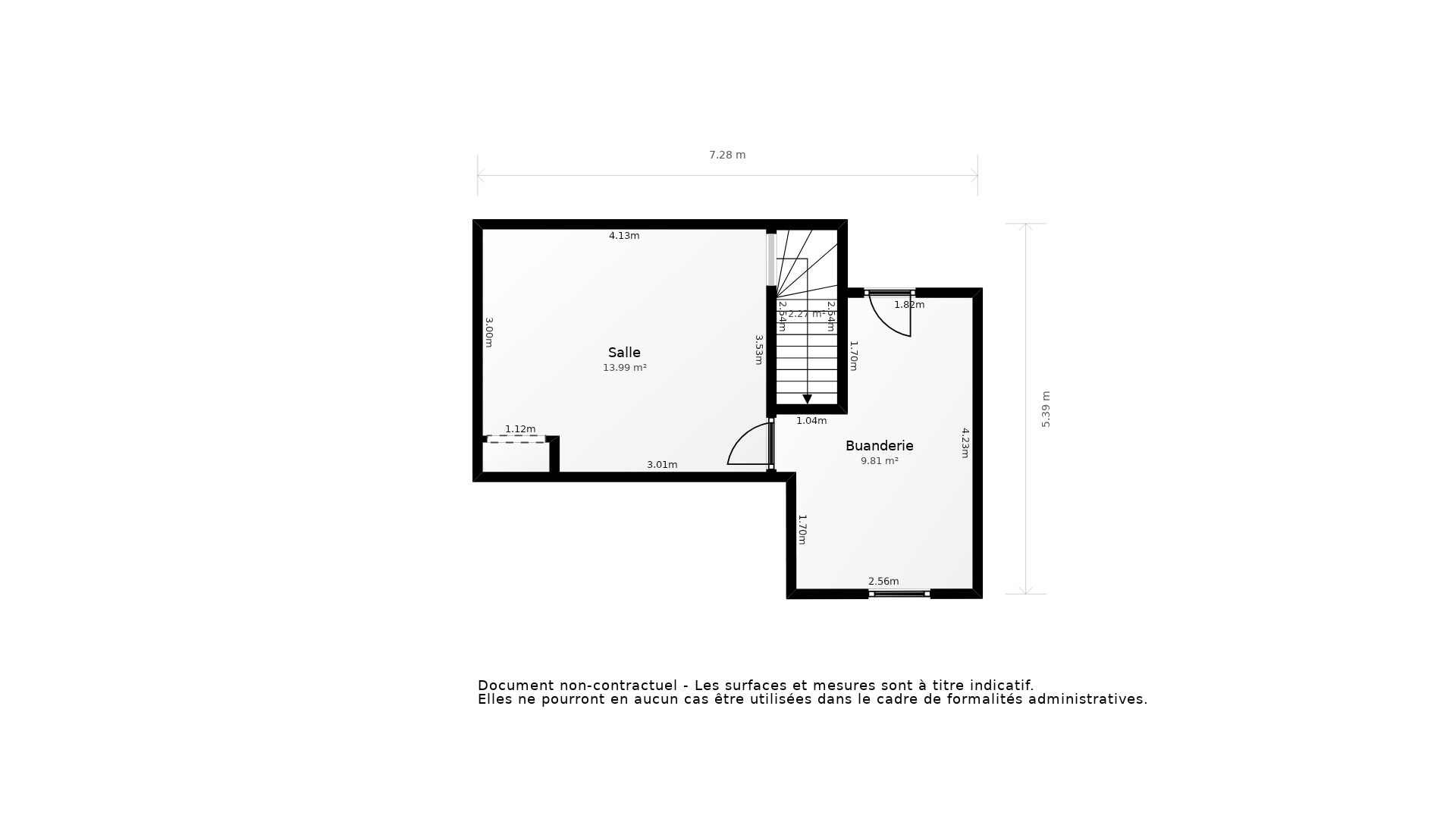
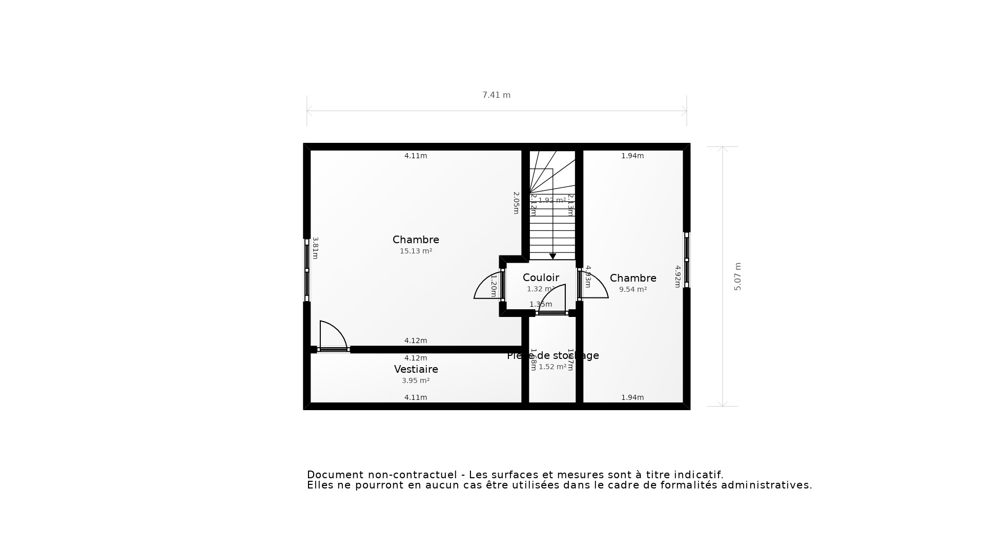
Une maison ancienne à usage d habitation élévée sur s/sol total aménagée en pièce d appoint et chaufferie/buanderie et comprenant de rez de chaussée : entrée, salon avec cheminée, cuisine aménagée + plaque, hotte, four et micro ondes, salle de douche avec wc. A l' étage : deux chambres, rangement. le tout sur une parcelle de 353 m²
Les informations sur les risques auxquels ce bien est exposé sont disponible sur le site Géorisques :
www.georisques.gouv.fr
Avec la complicité de notre partenaire, nous vous proposons cet aménagement virtuel non contractuel. La pièce a été entièrement repensée et laisse place à une décoration actuelle et tendance.
> Prendre rendez-vous pour visiterCe plan 2D représente la structure complète et précise du bien. La surface de chaque pièce est précisée à titre informatif. Ce plan ne se substitue en aucun cas à un diagnostic loi Carrez réalisé par un professionnel certifié.
> Télécharger le plan
Prix honoraires inclus : 215 660 € -
Honoraires à la charge de l'acquéreur : 5,20% TTC -
Prix hors honoraires : 205 000 €
*Choissisez une durée d'emprunt
*Taux basé sur la valeur locative cadastrale