logement très performant
logement extrêmement consommateur d'énergie
Contacter l'agence Aubergenville
Gare futur RER E a pied pour ce pavillon de plain pied situé dans une impasse à proximité des commerces. Composé d'un beau séjour double avec cheminée, deux chambres dont une spacieuse, espace buanderie, possibilité d'agrandissement, un garage indépendant et un s-sol viennent compléter ce bien. A visiter sans tarder !
Les informations sur les risques auxquels ce bien est exposé sont disponible sur le site Géorisques :
www.georisques.gouv.fr
Avec la complicité de notre partenaire, nous vous proposons cet aménagement virtuel non contractuel. La pièce a été entièrement repensée et laisse place à une décoration actuelle et tendance.
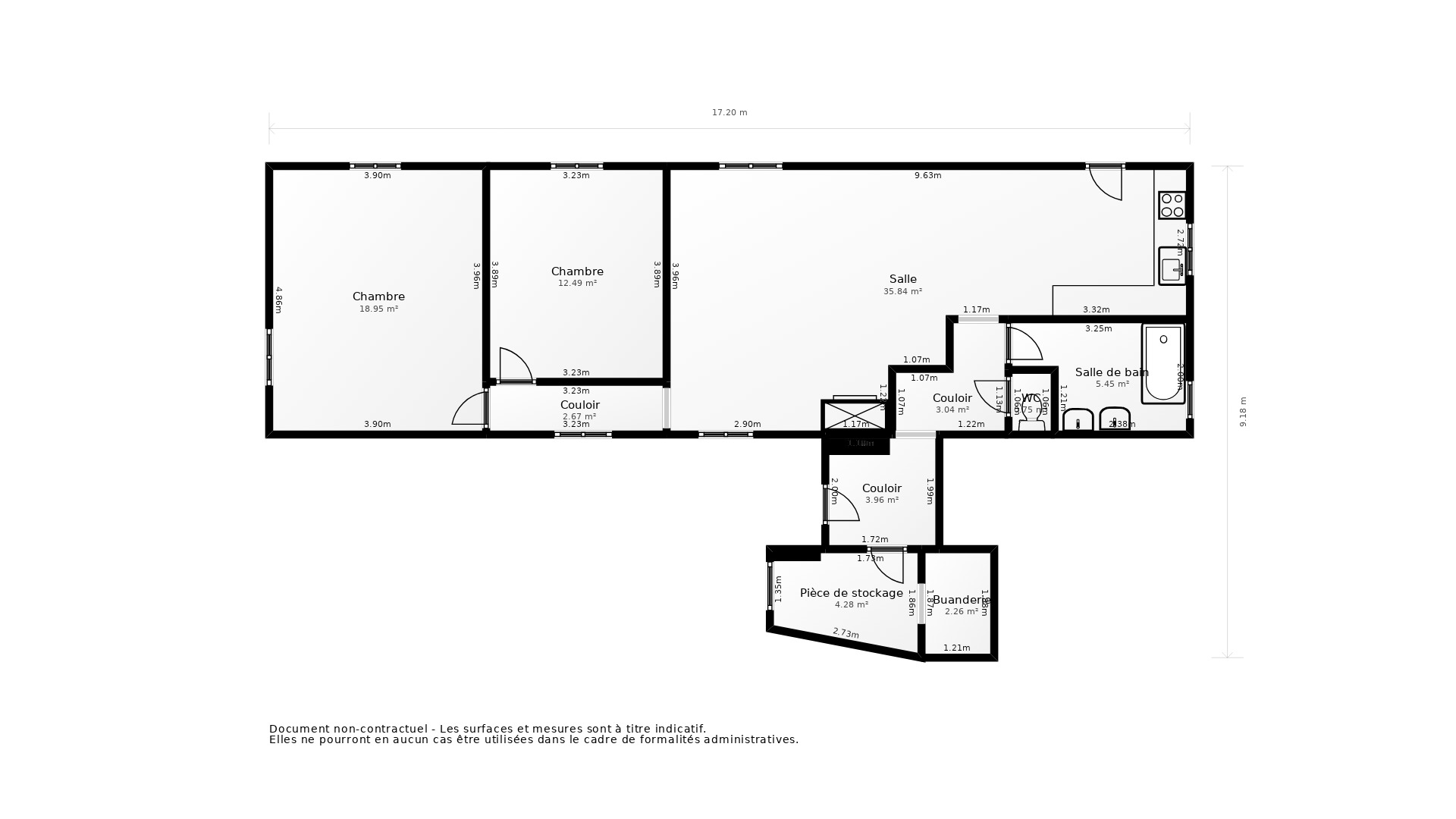
> Prendre rendez-vous pour visiterCe plan 2D représente la structure complète et précise du bien. La surface de chaque pièce est précisée à titre informatif. Ce plan ne se substitue en aucun cas à un diagnostic loi Carrez réalisé par un professionnel certifié.
> Télécharger le plan
Prix honoraires inclus : 240 000 € -
Honoraires à la charge de l'acquéreur : 5,20% TTC -
Prix hors honoraires : 228 136 €
*Choissisez une durée d'emprunt
*Taux basé sur la valeur locative cadastrale