Appartement à vendre |  Saint-Leu-la-Forêt |  1 pièce | 50 m²
153 700 €
Réf : 145-2768
Visitez en avant-première

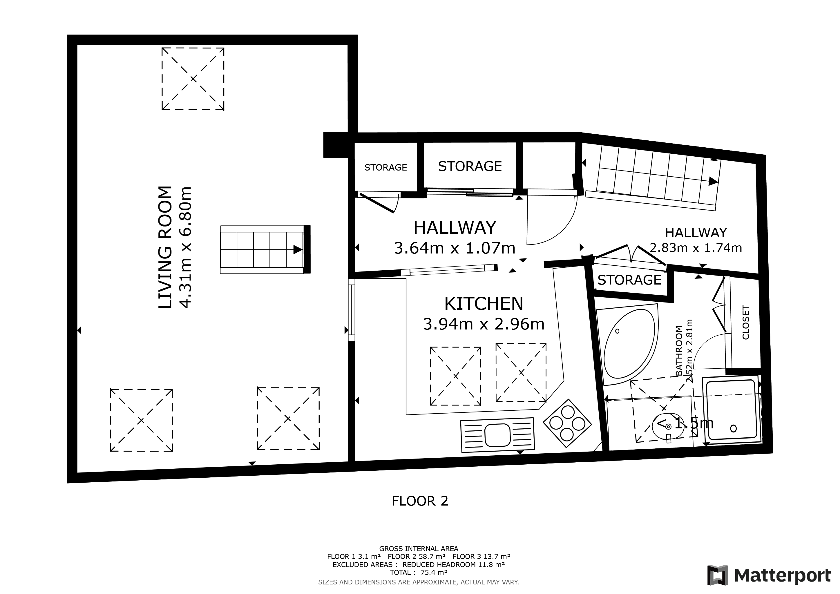
A quelques minutes à pied de la gare et des commodités, grand studio de 50 m² (73 m² au sol) au dernier étage d'une petite copropriété à faibles charges. Il se compose d'un vaste séjour de 24 m², cuisine équipée, sdb avec douche. En bonus : une chambre en mezzanine. Ambiance cosy et charme atypique garantis au coeur de St-Leu !

Ce bien est soumis à la copropriété et comporte 4 lots. Les charges courantes annuelles sont estimées à 422 €.

  • Surface habitable : 50 m²
  • Surface du séjour : 24 m²
  • Exposition séjour : Sud Ouest
  • Pièce(s) : 1
  • Cuisine : Equipée
  • Salle(s) de bain : 1
  • WC : 1
  • Chauffage : Électrique
  • Situation du bien : sous les combles
A
B
C
D
E
F
G
Dont Emission de gaz
à effet de serre
A
B
C
D
E
F
G
Afficher le DPE

Les informations sur les risques auxquels ce bien est exposé sont disponible sur le site Géorisques :
www.georisques.gouv.fr

Photo originale Photo retouchée
Laissez-vous inspirer par nos décorateurs

Avec la complicité de notre partenaire, nous vous proposons cet aménagement virtuel non contractuel. La pièce a été entièrement repensée et laisse place à une décoration actuelle et tendance.

> Prendre rendez-vous pour visiter
Prenez les mesures

Ce plan 2D représente la structure complète et précise du bien. La surface de chaque pièce est précisée à titre informatif. Ce plan ne se substitue en aucun cas à un diagnostic loi Carrez réalisé par un professionnel certifié.

> Télécharger le plan
Vente Appartement ST LEU LA FORET - 1 pièce - 50 m² - (95320)
Vente Appartement ST LEU LA FORET - 1 pièce - 50 m² - (95320)
Vente Appartement ST LEU LA FORET - 1 pièce - 50 m² - (95320)

Prix honoraires inclus : 153 700 €

Honoraires à la charge de l'acquéreur : 6,00% TTC

Prix hors honoraires : 145 000 €

Simulez votre mensualité pour l'achat de ce bien !

*Choissisez une durée d'emprunt

Simulez votre mensualité avec notre partenaire ImmoBanques


Calculez votre temps de trajet depuis ce bien



Les informations locales de Saint-Leu-la-Forêt

  • Transports
    • Arrêts de bus
    • Gares
    • Tramways
    • Arrêts de métro, RER
    • Aéroports
    • Parkings
  • Santé
    • Médecins généralistes
    • Médecins spécialistes
    • Pharmacies
    • Hôpitaux
  • Education Petite enfance
    • Crèches
    • Ecoles maternelles
    • Ecoles primaires
    • Collèges
    • Lycées
    • Enseignements supérieur
  • Loisirs & Culture
    • Restaurants, Cafés
    • Monuments, Bibliothèques
    • Sport
    • Espaces verts
    • Théatres, Cinémas, Casinos
  • Commerces Administration
    • Supermarchés
    • Bureaux de poste
    • Boulangeries
    • Boucheries
    • Marchés
    • Mairies, Police, Gendarmerie

Plus d’informations sur la ville de Saint-Leu-la-Forêt

  • Population : 14 750 habitants
  • Propriétaires : 76 %
  • Résidences secondaires : 1 %
  • Revenus moyens : 3 710 euros / mois
  • Taxe d'habitation* : 17 %
  • Taxe foncière* : 20 %
  • Densité de logements : 12 log/ha
  • Type de maison : Maisons récentes
  • Logements sociaux : 10 %
  • Densité de population : 2 780 hab/km²

*Taux basé sur la valeur locative cadastrale

Agence immobilière ancien neuf St Leu la Forêt
55 RUE DU GENERAL LECLERC
95320 ST LEU LA FORET