Appartement à vendre |  Goussonville |  3 pièces | 75 m²
247 220 €
Réf : 175-2919
Visitez en avant-première

A qq min de Maule, dans un environnement calme et proche de la nature, vous serez sous le charme de cet appartement de 75m², entièrement rénové. Situé dans une belle bâtisse en pierre, il offre un espace de vie avec cuisine équipée, 2 chambres, SDD, mezzanine (espace bureau ou nuit). Son plus : un extérieur arboré avec un appenti.

Ce bien est soumis à la copropriété et comporte 3 lots. Les charges courantes annuelles sont estimées à 380 €.

  • Surface habitable : 75 m²
  • Surface du séjour : 32 m²
  • Exposition séjour : Plein Est
  • Pièce(s) : 3
  • Chambre(s) : 2
  • Cuisine : Equipée
  • Salle(s) d'eau : 1
  • WC : 1
  • Chauffage : Électrique
  • Parking(s) : 3
  • Situation du bien : au rez-de-chaussée
A
B
C
D
E
F
G
Dont Emission de gaz
à effet de serre
A
B
C
D
E
F
G
Afficher le DPE

Les informations sur les risques auxquels ce bien est exposé sont disponible sur le site Géorisques :
www.georisques.gouv.fr

Photo originale Photo retouchée
Laissez-vous inspirer par nos décorateurs

Ils ont imaginé pour vous cet aménagement virtuel non contractuel. L'extérieur a été entièrement repensé afin de révéler tout son potentiel.

> Prendre rendez-vous pour visiter
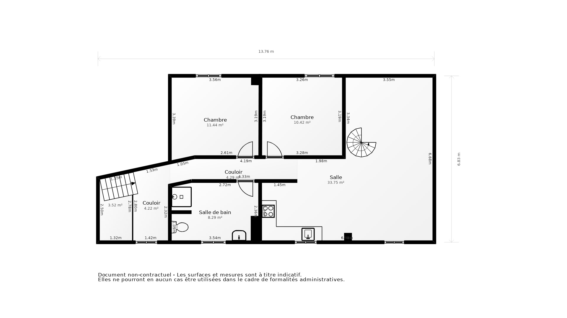
Prenez les mesures

Ce plan 2D représente la structure complète et précise du bien. La surface de chaque pièce est précisée à titre informatif. Ce plan ne se substitue en aucun cas à un diagnostic loi Carrez réalisé par un professionnel certifié.

> Télécharger le plan
Vente Appartement GOUSSONVILLE - 3 pièces - 75 m² - (78930)
Vente Appartement GOUSSONVILLE - 3 pièces - 75 m² - (78930)
Vente Appartement GOUSSONVILLE - 3 pièces - 75 m² - (78930)

Prix honoraires inclus : 247 220 €

Honoraires à la charge de l'acquéreur : 5,20% TTC

Prix hors honoraires : 235 000 €

Simulez votre mensualité pour l'achat de ce bien !

*Choissisez une durée d'emprunt

Simulez votre mensualité avec notre partenaire ImmoBanques


Calculez votre temps de trajet depuis ce bien



Les informations locales de Goussonville

  • Transports
    • Arrêts de bus
    • Gares
    • Tramways
    • Arrêts de métro, RER
    • Aéroports
    • Parkings
  • Santé
    • Médecins généralistes
    • Médecins spécialistes
    • Pharmacies
    • Hôpitaux
  • Education Petite enfance
    • Crèches
    • Ecoles maternelles
    • Ecoles primaires
    • Collèges
    • Lycées
    • Enseignements supérieur
  • Loisirs & Culture
    • Restaurants, Cafés
    • Monuments, Bibliothèques
    • Sport
    • Espaces verts
    • Théatres, Cinémas, Casinos
  • Commerces Administration
    • Supermarchés
    • Bureaux de poste
    • Boulangeries
    • Boucheries
    • Marchés
    • Mairies, Police, Gendarmerie

Plus d’informations sur la ville de Goussonville

  • Population : 610 habitants
  • Propriétaires : 83 %
  • Résidences secondaires : 5 %
  • Revenus moyens : 4 020 euros / mois
  • Taxe d'habitation* : 6 %
  • Taxe foncière* : 13 %
  • Densité de logements : 1 log/ha
  • Type de maison : Maisons récentes
  • Logements sociaux : 0 %
  • Densité de population : 130 hab/km²

*Taux basé sur la valeur locative cadastrale

Agence immobilière ancien neuf Maule
26 PLACE DU GENERAL DE GAULLE
78580 MAULE