Appartement à vendre |  Brest |  3 pièces | 53 m²
Vendu
Réf : 199-3286

Quartier Recouvrance - 4 Moulins


Recouvrance – Triplex rénové au calme d’une impasse, avec cuisine aménagée équipée, extérieur, grande chambre, bureau, salle d’eau et combles. Trois niveaux bien pensés, copropriété soignée. À deux pas des commerces et des transports, c’est le cocon idéal. Vous n'avez plus qu'a poser vos valises !

Ce bien est soumis à la copropriété et comporte 21 lots. Les charges courantes annuelles sont estimées à 1400 €.

Bien sous compromis Bien sous compromis
  • Surface habitable : 53 m²
  • Exposition séjour : Plein Nord
  • Pièce(s) : 3
  • Chambre(s) : 1
  • Cuisine : Américaine aménagée
  • Salle(s) d'eau : 1
  • WC : 1
  • Chauffage : Électrique
  • Terrasse : Oui
  • Grenier,Combles : Oui
  • Situation du bien : autre
A
B
C
D
E
F
G
Dont Emission de gaz
à effet de serre
A
B
C
D
E
F
G
Afficher le DPE

Les informations sur les risques auxquels ce bien est exposé sont disponible sur le site Géorisques :
www.georisques.gouv.fr

Photo originale Photo retouchée
Laissez-vous inspirer par nos décorateurs

Ils ont imaginé pour vous cet aménagement virtuel non contractuel. L'extérieur a été entièrement repensé afin de révéler tout son potentiel.

> Prendre rendez-vous pour visiter
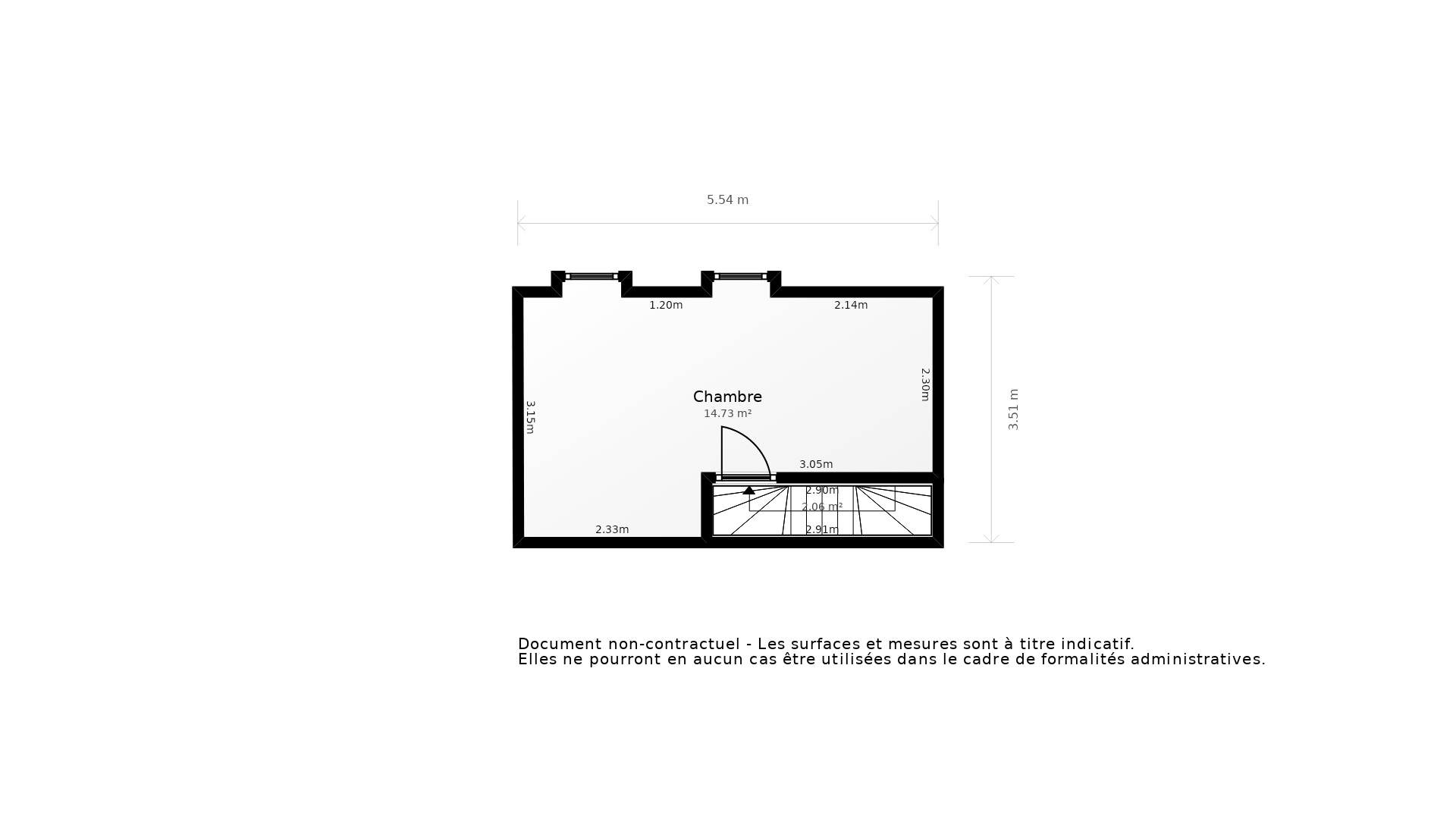
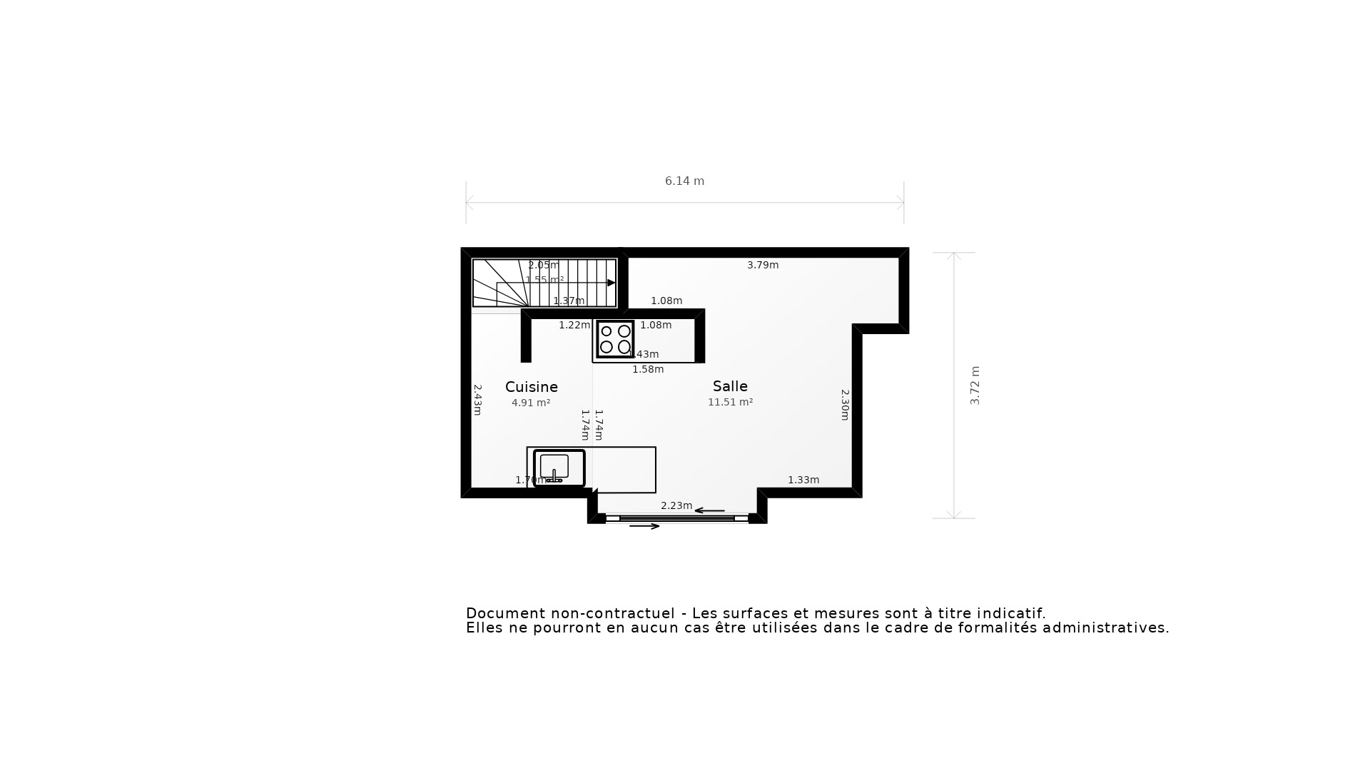
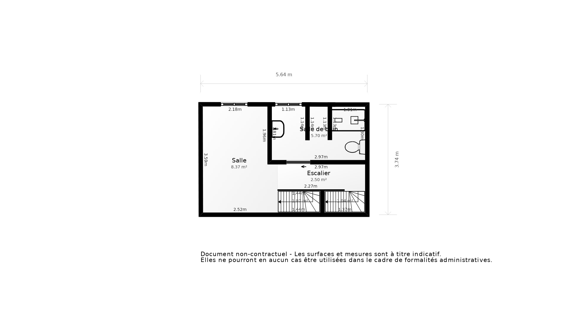
Prenez les mesures

Ce plan 2D représente la structure complète et précise du bien. La surface de chaque pièce est précisée à titre informatif. Ce plan ne se substitue en aucun cas à un diagnostic loi Carrez réalisé par un professionnel certifié.

> Télécharger le plan
Vente Appartement BREST - 3 pièces - 53 m² - (29200)
Vente Appartement BREST - 3 pièces - 53 m² - (29200)
Vente Appartement BREST - 3 pièces - 53 m² - (29200)

Prix honoraires inclus : 159 000 €

Honoraires à la charge de l'acquéreur : 6,00% TTC

Prix hors honoraires : 150 000 €

Simulez votre mensualité pour l'achat de ce bien !

*Choissisez une durée d'emprunt

Simulez votre mensualité avec notre partenaire ImmoBanques


Calculez votre temps de trajet depuis ce bien



Les informations locales du quartier Recouvrance - 4 Moulins de Brest

  • Transports
    • Arrêts de bus
    • Gares
    • Tramways
    • Arrêts de métro, RER
    • Aéroports
    • Parkings
  • Santé
    • Médecins généralistes
    • Médecins spécialistes
    • Pharmacies
    • Hôpitaux
  • Education Petite enfance
    • Crèches
    • Ecoles maternelles
    • Ecoles primaires
    • Collèges
    • Lycées
    • Enseignements supérieur
  • Loisirs & Culture
    • Restaurants, Cafés
    • Monuments, Bibliothèques
    • Sport
    • Espaces verts
    • Théatres, Cinémas, Casinos
  • Commerces Administration
    • Supermarchés
    • Bureaux de poste
    • Boulangeries
    • Boucheries
    • Marchés
    • Mairies, Police, Gendarmerie

Plus d’informations sur la ville de Brest

  • Population : 139 680 habitants
  • Propriétaires : 46 %
  • Résidences secondaires : 2 %
  • Revenus moyens : 1 960 euros / mois
  • Taxe d'habitation* : 21 %
  • Taxe foncière* : 24 %
  • Densité de logements : 16 log/ha
  • Type de maison : Maisons de ville
  • Logements sociaux : 18 %
  • Densité de population : 2 730 hab/km²

*Taux basé sur la valeur locative cadastrale

Agence immobilière ancien neuf Brest Recouvrance
31 RUE DE LA PORTE
29200 BREST