Appartement à vendre |  Bordeaux |  4 pièces | 117 m²
520 000 €
Réf : 512-795
Visitez en avant-première

Quartier Croix de Seguey - Parc Rivière


CROIX DE SEGUEY - Dans une magnifique copropriété en pierre avec ascenseur, découvrez cet appartement plein de charme : belle hauteur sous plafond, pièce de vie lumineuse, 3 chambres, 1 bureau. Vous apprécierez le cachet de l'ancien allié à une vie pratique, avec parking et cave en complément.

Ce bien est soumis à la copropriété et comporte 6 lots. Les charges courantes annuelles sont estimées à 180 €.

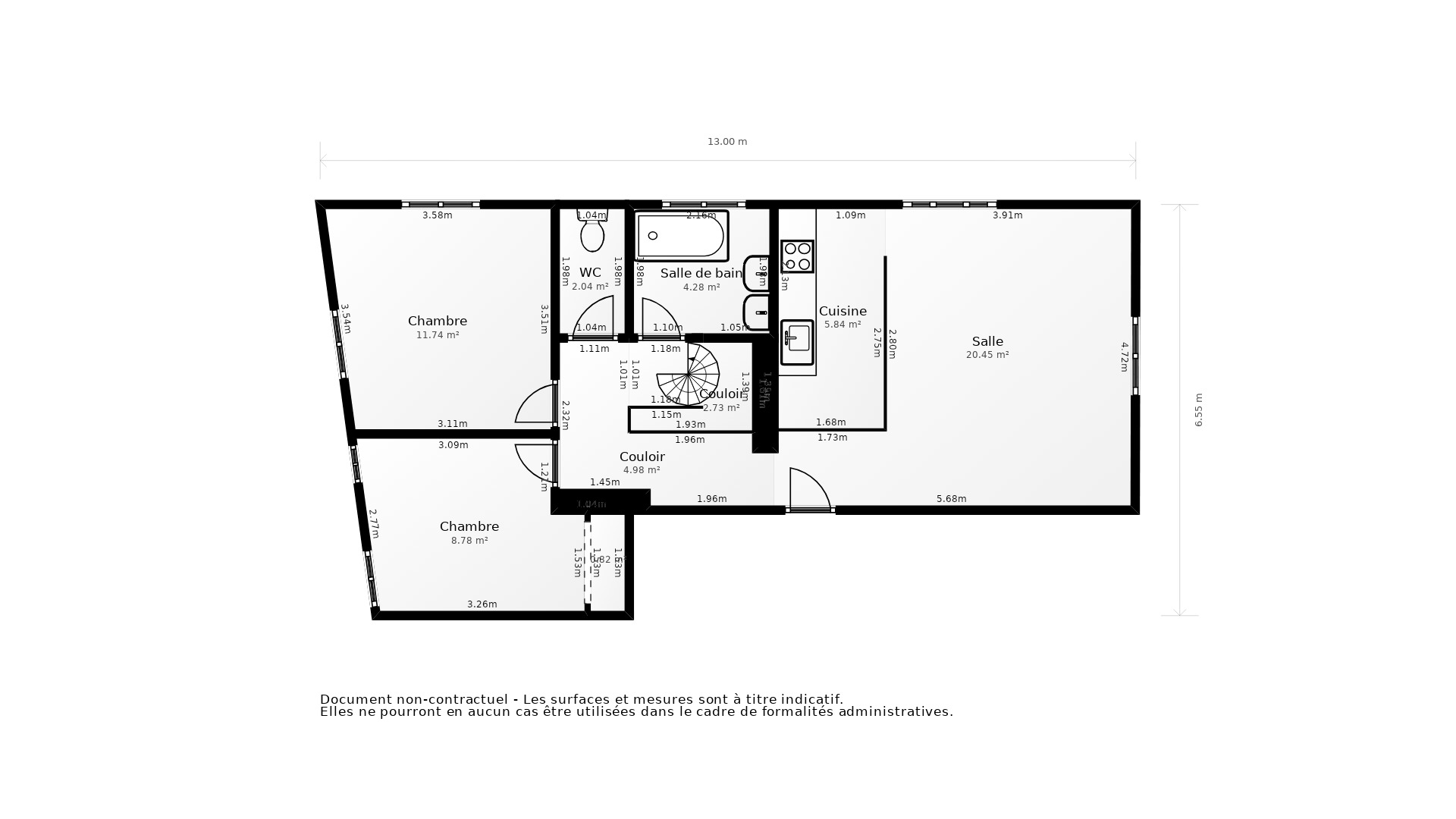
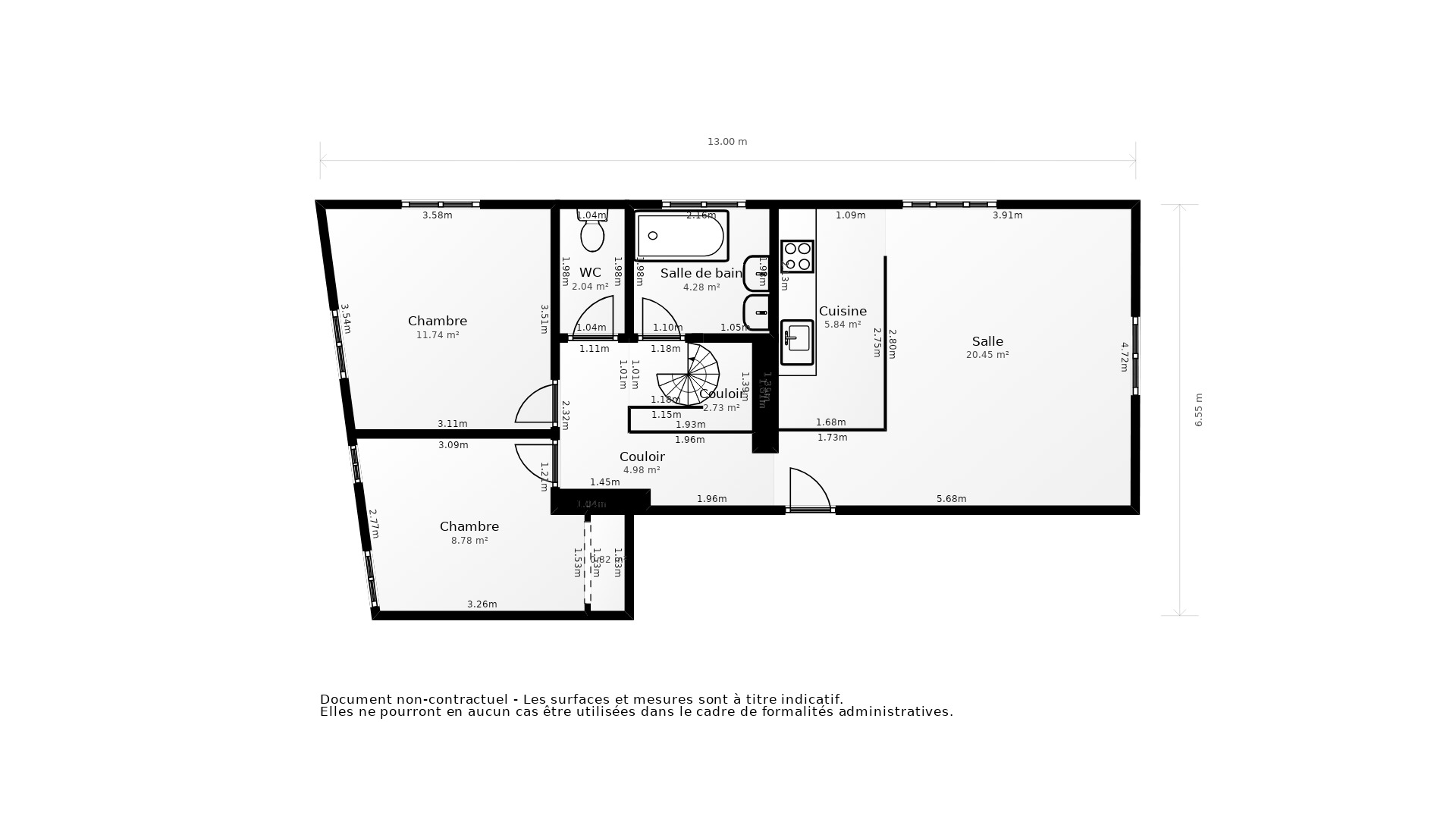
  • Surface habitable : 117 m²
  • Surface du séjour : 30 m²
  • Exposition séjour : Plein Sud
  • Pièce(s) : 4
  • Chambre(s) : 3
  • Cuisine : Américaine aménagée
  • Salle(s) de bain : 1
  • Chauffage : Gaz
  • Cave : Oui
  • Parking(s) : 1
  • Situation du bien : au rez-de-chaussée
A
B
C
D
E
F
G
Dont Emission de gaz
à effet de serre
A
B
C
D
E
F
G
Afficher le DPE

Les informations sur les risques auxquels ce bien est exposé sont disponible sur le site Géorisques :
www.georisques.gouv.fr

Photo originale Photo retouchée
Laissez-vous inspirer par nos décorateurs

Avec la complicité de notre partenaire, nous vous proposons cet aménagement virtuel non contractuel. La pièce a été entièrement repensée et laisse place à une décoration actuelle et tendance.

> Prendre rendez-vous pour visiter
Prenez les mesures

Ce plan 2D représente la structure complète et précise du bien. La surface de chaque pièce est précisée à titre informatif. Ce plan ne se substitue en aucun cas à un diagnostic loi Carrez réalisé par un professionnel certifié.

> Télécharger le plan
Vente Appartement BORDEAUX - 4 pièces - 117 m² - (33000)
Vente Appartement BORDEAUX - 4 pièces - 117 m² - (33000)
Vente Appartement BORDEAUX - 4 pièces - 117 m² - (33000)
Vente Appartement BORDEAUX - 4 pièces - 117 m² - (33000)
Vente Appartement BORDEAUX - 4 pièces - 117 m² - (33000)
Vente Appartement BORDEAUX - 4 pièces - 117 m² - (33000)

Prix honoraires inclus : 520 000 €

Honoraires à la charge de l'acquéreur : 4,00% TTC

Prix hors honoraires : 500 000 €

Simulez votre mensualité pour l'achat de ce bien !

*Choissisez une durée d'emprunt

Simulez votre mensualité avec notre partenaire ImmoBanques


Calculez votre temps de trajet depuis ce bien



Les informations locales du quartier Croix de Seguey - Parc Rivière de Bordeaux

  • Transports
    • Arrêts de bus
    • Gares
    • Tramways
    • Arrêts de métro, RER
    • Aéroports
    • Parkings
  • Santé
    • Médecins généralistes
    • Médecins spécialistes
    • Pharmacies
    • Hôpitaux
  • Education Petite enfance
    • Crèches
    • Ecoles maternelles
    • Ecoles primaires
    • Collèges
    • Lycées
    • Enseignements supérieur
  • Loisirs & Culture
    • Restaurants, Cafés
    • Monuments, Bibliothèques
    • Sport
    • Espaces verts
    • Théatres, Cinémas, Casinos
  • Commerces Administration
    • Supermarchés
    • Bureaux de poste
    • Boulangeries
    • Boucheries
    • Marchés
    • Mairies, Police, Gendarmerie

Plus d’informations sur la ville de Bordeaux

  • Population : 241 290 habitants
  • Propriétaires : 32 %
  • Résidences secondaires : 3 %
  • Revenus moyens : 2 110 euros / mois
  • Taxe d'habitation* : 24 %
  • Taxe foncière* : 30 %
  • Densité de logements : 29 log/ha
  • Type de maison : Locations nombreuses
  • Logements sociaux : 12 %
  • Densité de population : 4 850 hab/km²

*Taux basé sur la valeur locative cadastrale

Agence immobilière ancien neuf Bordeaux Croix de Seguey
186 RUE FONDAUDEGE
33000 BORDEAUX