logement très performant
logement extrêmement consommateur d'énergie
Contacter l'agence Bordeaux Tourny
Quartier Jardin Public - St Seurin - Croix Blanche
Secteur Tourny, idéalement placé, ce studio entièrement rénové offre lumière et calme absolu dans un quartier très dynamique et à proximité de toutes commodités. Sis dans un petit immeuble en pierre, ce bien est ideal en pied à terre ou premier achat.
Ce bien est soumis à la copropriété. Les charges courantes annuelles sont estimées à 480 €.
Les informations sur les risques auxquels ce bien est exposé sont disponible sur le site Géorisques :
www.georisques.gouv.fr
Avec la complicité de notre partenaire, nous vous proposons cet aménagement virtuel non contractuel. La pièce a été entièrement repensée et laisse place à une décoration actuelle et tendance.
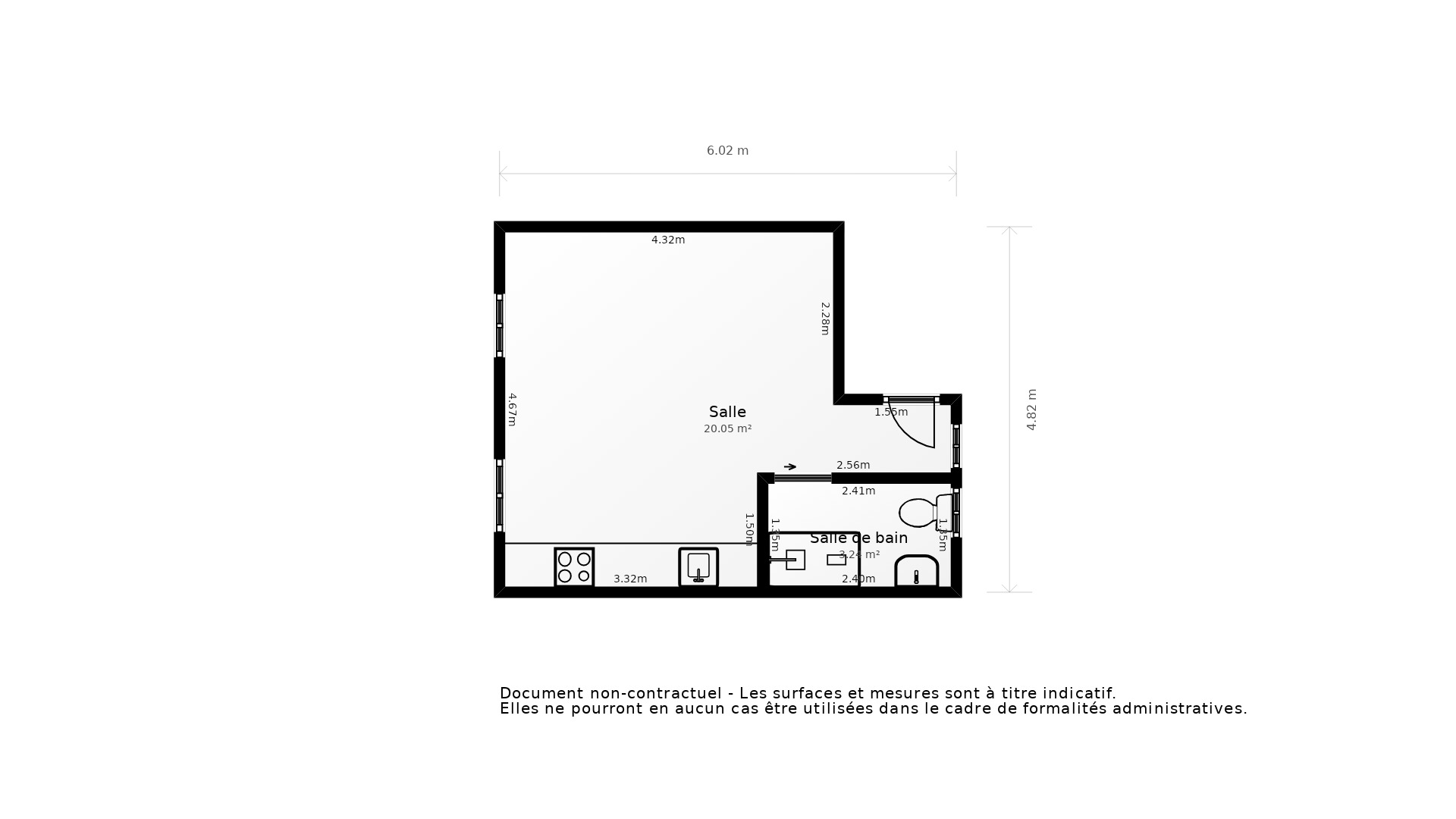
> Prendre rendez-vous pour visiterCe plan 2D représente la structure complète et précise du bien. La surface de chaque pièce est précisée à titre informatif. Ce plan ne se substitue en aucun cas à un diagnostic loi Carrez réalisé par un professionnel certifié.
> Télécharger le plan
Prix honoraires inclus : 174 371 € -
Honoraires à la charge de l'acquéreur : 5,68% TTC -
Prix hors honoraires : 165 000 €
*Choissisez une durée d'emprunt
*Taux basé sur la valeur locative cadastrale