logement très performant
logement extrêmement consommateur d'énergie
Contacter l'agence Bordeaux Tourny
Quartier Tourny - Gambetta - St Pierre
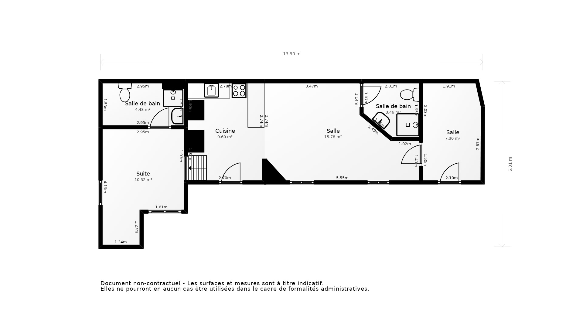
En seconde ligne d'un petit immeuble pierre à la façade ravalée, au 2nd et dernier étage, ce charmant appartement, de 61 m² en surface utile, dispose d'une agréable pièce de vie avec cuisine américaine, d'une chambre avec salle d'eau attenante et d'un bureau (ou second espace nuit). Calme absolu. Vue verdoyante. Beaucoup de charme
Ce bien est soumis à la copropriété et comporte 4 lots. Les charges courantes annuelles sont estimées à 540 €.
Les informations sur les risques auxquels ce bien est exposé sont disponible sur le site Géorisques :
www.georisques.gouv.fr
Avec la complicité de notre partenaire, nous vous proposons cet aménagement virtuel non contractuel. La pièce a été entièrement repensée et laisse place à une décoration actuelle et tendance.
> Prendre rendez-vous pour visiterCe plan 2D représente la structure complète et précise du bien. La surface de chaque pièce est précisée à titre informatif. Ce plan ne se substitue en aucun cas à un diagnostic loi Carrez réalisé par un professionnel certifié.
> Télécharger le plan
Prix honoraires inclus : 355 232 € -
Honoraires à la charge de l'acquéreur : 4,48% TTC -
Prix hors honoraires : 340 000 €
*Choissisez une durée d'emprunt
*Taux basé sur la valeur locative cadastrale